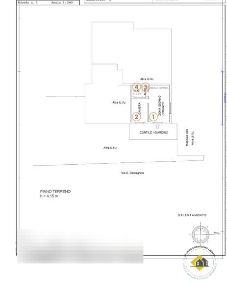
Sturla Immerso nella tranquillità di una zona residenziale di Genova, si trova questo delizioso appartamento bilocale in vendita all'asta immobiliare. Situato al piano terra di un edificio residenziale, l'immobile offre una superficie di 60 mq ideale per una coppia o per chi cerca uno spazio accogliente e funzionale. Con un'ampia camera da letto, un luminoso soggiorno e un bagno, questo appartamento è perfetto per chi desidera un'abitazione in una zona tranquilla della città. Inoltre, la presenza di un piccolo cortile esterno aggiunge un tocco di spazio all'aperto, perfetto per momenti di relax.
L'immobile è in discrete condizioni e dispone di riscaldamento autonomo, garantendo comfort e indipendenza. Inoltre, il posto auto scoperto, situato nelle immediate vicinanze dell'abitazione, rappresenta un ulteriore vantaggio per chi possiede un veicolo.
Questa proprietà rappresenta un'ottima opportunità per chi desidera vivere in una zona residenziale di Genova, con la comodità di un posto auto e la tranquillità di un contesto abitativo discreto. Ideale anche come investimento, grazie alla sua posizione strategica e alle caratteristiche che offre. Non perdere l'occasione di avere il tuo appartamento bilocale a Genova con un prezzo vantaggioso di soli €103.966. Contattaci per maggiori informazioni e per prenotare una visita!
🏡 ASTE IMMOBILIARI SICURE - CONSULENZA COMPLETA + OPERAZIONI PRE-ASTA
Vuoi acquistare un immobile all'asta senza rischi e con il massimo supporto?
Ti accompagniamo in ogni fase, dalla ricerca fino all'aggiudicazione.
⸻
🔍 I nostri servizi
✔ Ricerca immobile su misura
✔ Studio di fattibilità pre-asta
✔ Analisi mutuo con banche convenzionate
✔ Verifica legale e documentale completa
✔ Esame perizia
✔ Analisi strategica pre-asta con supporto legale dedicato
Valutiamo opportunità di:
- Pre-asta
- Saldo e stralcio
- Acquisto del credito
✔ Preparazione e deposito offerta
✔ Assistenza completa durante la gara
✔ Supporto fino al decreto di trasferimento / rogito
⸻
✅ I vantaggi
✔ Prima consulenza gratuita
✔ Oltre 20.000 immobili in asta disponibili
✔ Riduzione rischi e tempi
✔ Possibilità di acquisti a condizioni vantaggiose
⸻
📞 CONTATTACI ORA
Richiedi una consulenza senza impegno per scoprire:
- migliori opportunità disponibili
- costi e tempistiche
- strategie di acquisto più adatte a te
⸻
ℹ️ Nota
Le immagini potrebbero essere indicative e non rappresentare l'immobile reale.
Le coordinate geografiche potrebbero contenere imprecisioni.
Tutti i dati verranno verificati e confermati in sede di consulenza
Immobile posto in vendita dal Tribunale. Vieni a scoprire come acquistare prima dell'asta. Annuncio finalizzato alla vendita del servizio di assistenza per un acquisto sicuro e conveniente.